MH Concept Sàrl
4, rue G.-D. Charlotte
L-6190 Gonderange
Luxembourg
  +352 26 48 00 39
+352 621 484 468
Fax : +352 26 48 00 59

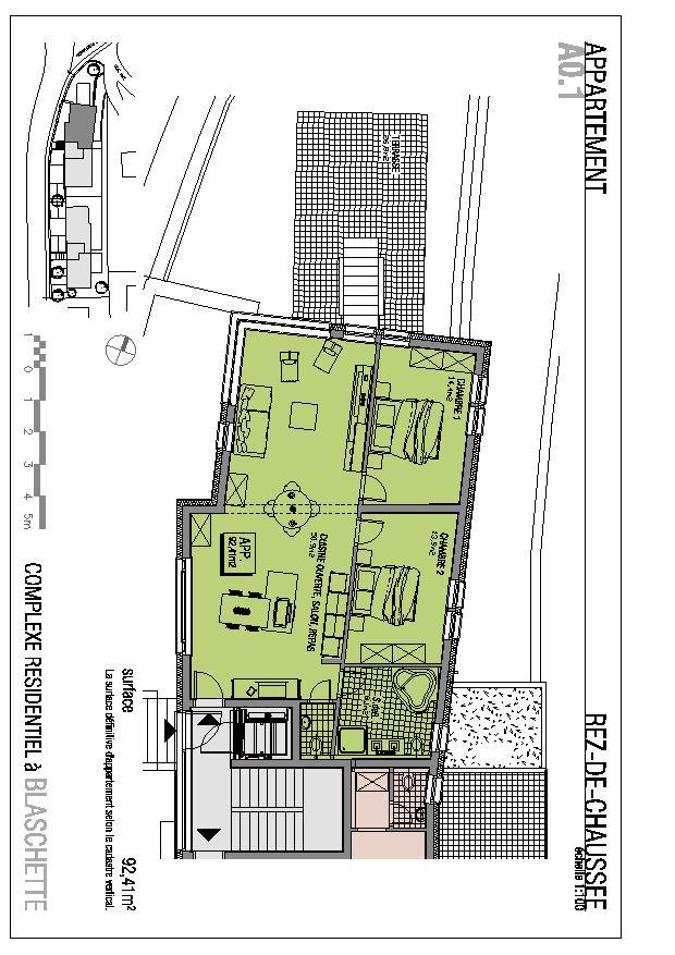
Appartement à vendre 2 chambres à Blaschette

  • Type : Appartement
  • Chambres : 2
  • Surface habitable : +/-102,00 m2
  • Superficie terrain : +/- 8,00 Ares
  • Etage : RDC
  • Localisation : Blaschette
  • Prix de vente : 479 663 €
  • neuf
  • Type de mandat : Exclusif
  • Classe énergétique : A A
  • Classe d'isolation thermique : B

Description

Il s'agit d'un ensemble résidentiel de haut standing situé à Blaschette dans la commune de Lorentzweiler à 15 minutes de Luxembourg/Kirchberg. Le projet en futur état d'achèvement prévoit le développement de 8 appartements avec une surface allant de 56 m² à 114 m² à 1 ou 2 chambres à coucher plus les terrasses, loggias ou balcons, ainsi que deux bureaux administratifs spacieux au rez-de-chaussée. Vous trouverez également des emplacements intérieurs au sous-sol -1 et des emplacements extérieurs au rez-de-chaussée devant les bâtiments. Le prix de vente affiché est au taux de TVA de 3%. Le prix d'un emplacement intérieur est de 25.487,50 € (TTC 3%), et le prix d'un emplacement extérieur est de 10.195,00 € (TTC 3%).

Caractéristiques

Intérieur

Salon50.00 m2
Cuisine ouverteoui

Sanitaires

Salle de bain1
Toilette séparée1

Extérieur

Terrain8.00 ares
Terrasse27.00 m2

Autres

Ascenseuroui
Caveoui
Buanderieoui
Sous-soloui

Chauffage / climatisation

Chauffageoui
Chauffage au gazoui

Localisation